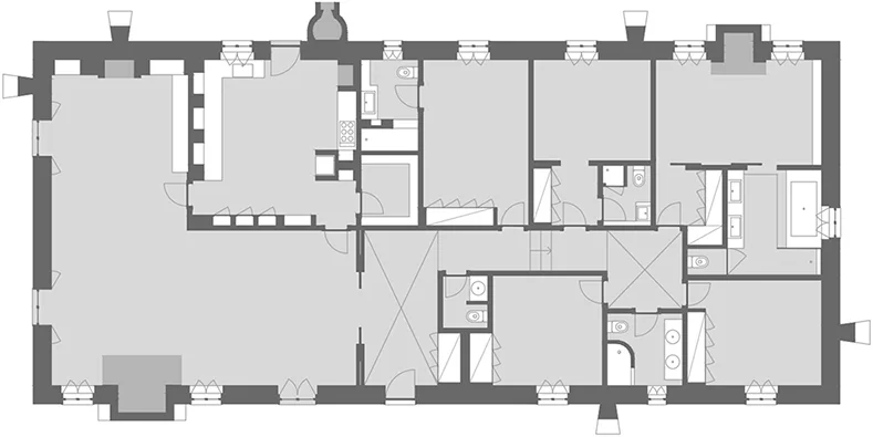
Country house
300m2
Monte Aranha de Baixo. Arraiolos, Alentejo — 2003

Interior Architecture project for licensing project qualification at detailing level. Equipment design, coatings and flooring. Infrastructures coordination.

Construction: Adelino Andrade Lda.
Home automation, conditioning and thermal comfort: Sanostra

Photography
Fernando Piçarra
 

Moradia unifamiliar
300m2
Monte Aranha de Baixo. Arraiolos, Alentejo — 2003

Projecto de Arquitectura de Interiores para qualificação de projecto de licenciamento ao nível da pormenorização. Desenho de equipamento fixo, revestimentos e pavimentos, implementação e articulação das especialidades.

Construção: Adelino Andrade Lda.
Domótica, condicionamento e conforto térmico: Sanostra

Fotografia